x
D H U R G A

4 BHK Luxurious Apartment - Stilt + 5 Floors

DHURGA LAKSHMI

Adyar-Chennai: @ Nehru Nagar
Salable Area Sq.ft: 2800 Sq.ft
Facing: East
Location: No.5, Old No.2, 3rd Street, Nehru Nagar, Adyar, Chennai - 600 020.
  • Date : Project: POSSESION January, 2027
  • Service :4 BHK Luxurious Apartment - Stilt + 5 Floors
S.No
Floors
Flat No
Saleable Area Sq.ft
Type
Facing
Availability
1
First Floor
1
2800
4 BHK
East
Sold Out
2
Second Floor
2
2800
4 BHK
East
Sold Out
3
Third Floor
3
2800
4 BHK
East
Sold Out
4
Fourth Floor
4
2800
4 BHK
East
Available
5
Fifth Floor
5
2800
4 BHK
East
Sold Out
 
Option 1
Option 2
Option 3
Site cum stilt floor plan
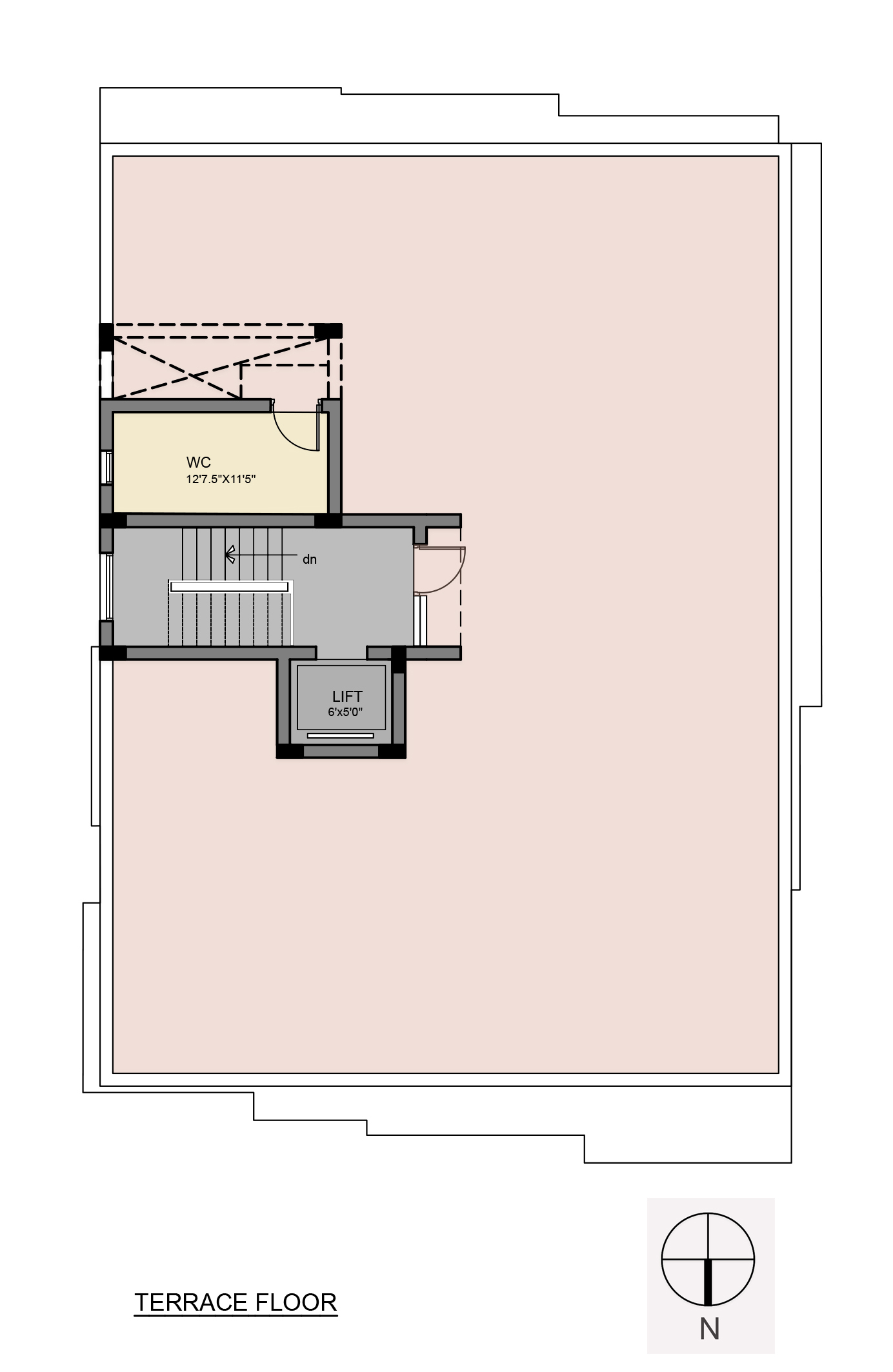
Terrace Floor Plan
Choose Layout
RTL Version
Boxed Version
Want Sticky Header